杭州梦启办公室装修设计公司 杭州办公室装修设计 杭州办公室装修公司电话
杭州办公室装修效果图
办公深化图纸 浏览: 日期:2022-08-22 17:33 | 作者:梦启工装设计公司

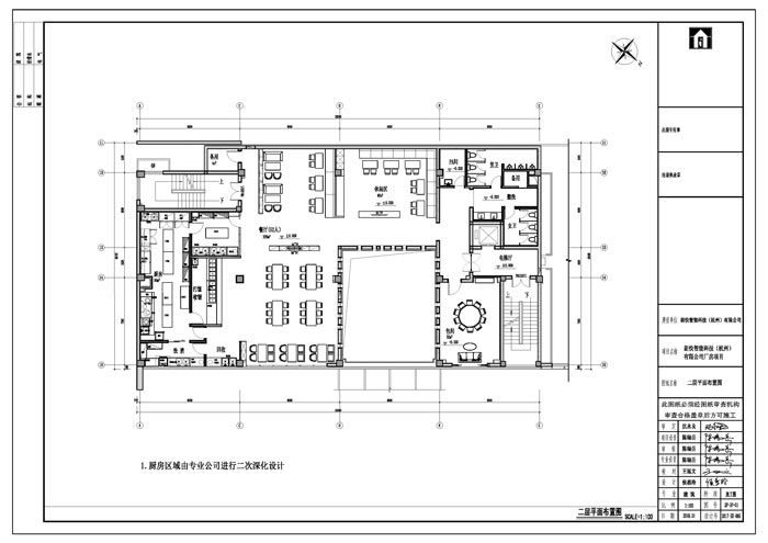
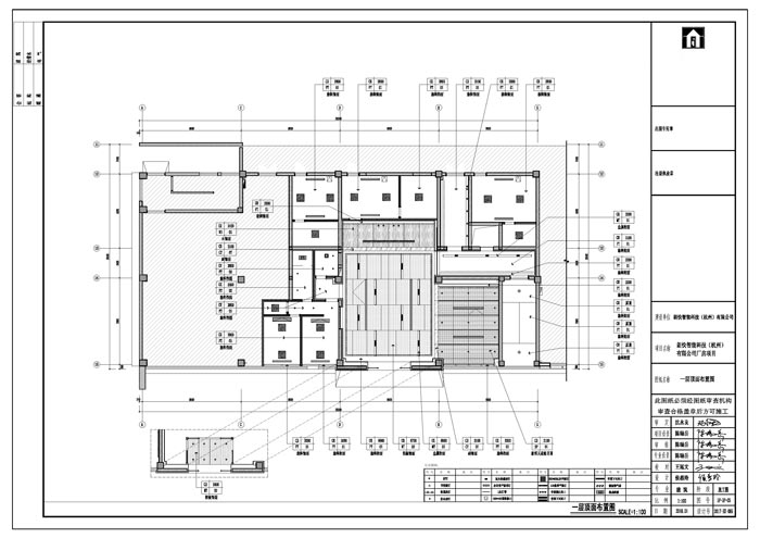
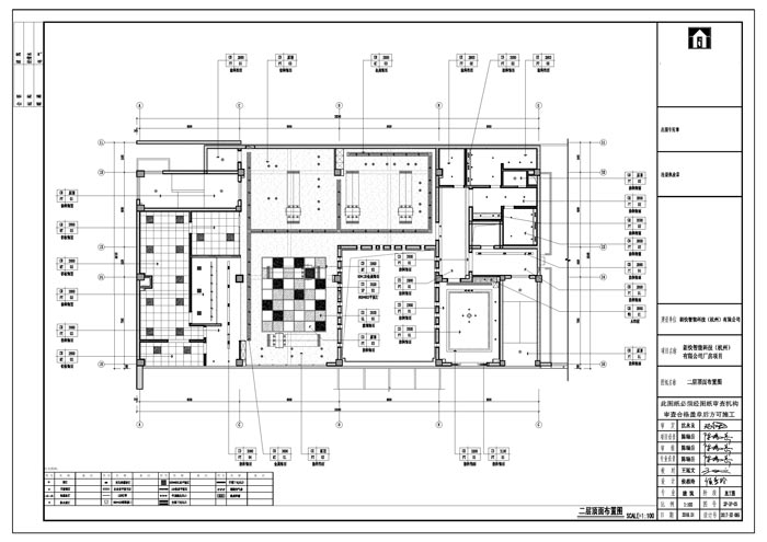
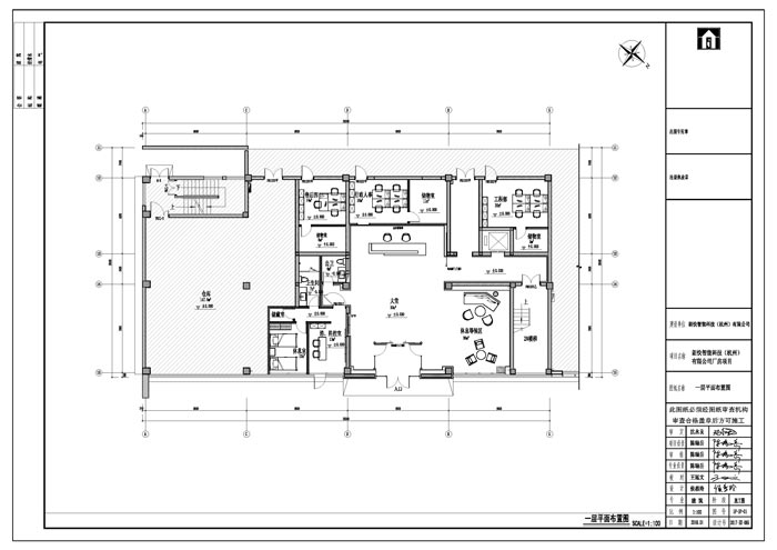
▼平面

 

办公深化图纸

 

▼平面

 

办公深化图纸

 

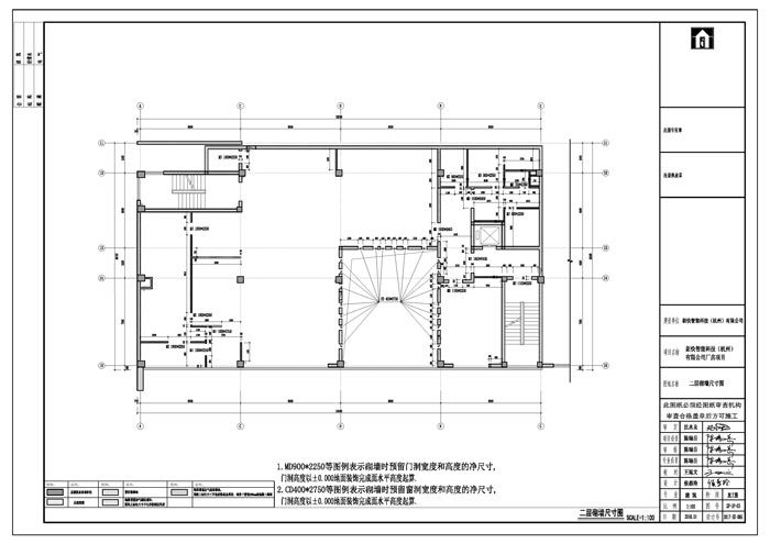
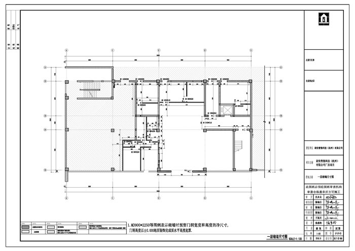
▼尺寸

 

办公深化图纸

 

▼尺寸

 

办公深化图纸

 

▼顶面

 

办公深化图纸

 

▼顶面

 

办公深化图纸

 

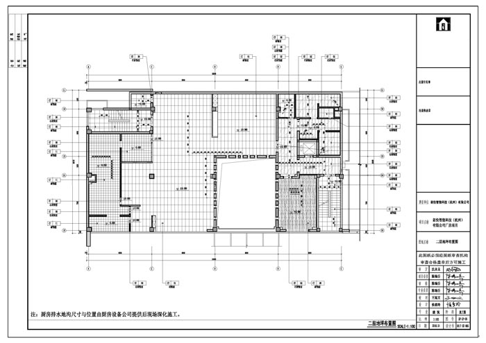
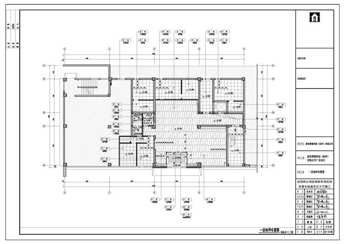
▼地毯

 

办公深化图纸

 

▼地毯

 

办公深化图纸

 

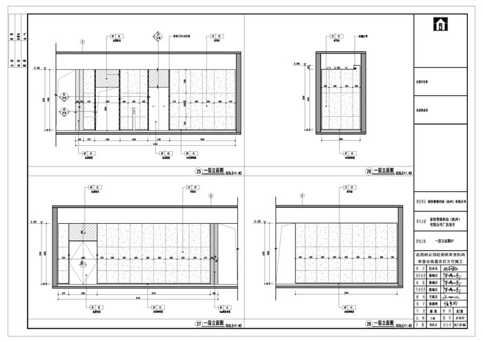
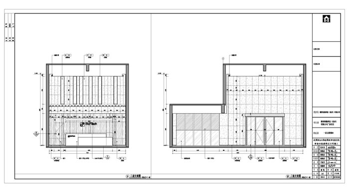
▼立面

 

办公深化图纸

 

▼立面

 

办公深化图纸

 

▼立面

 

办公深化图纸

 

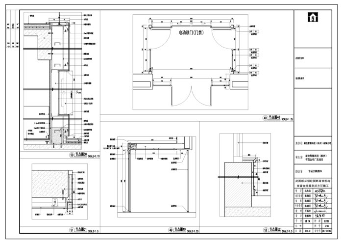
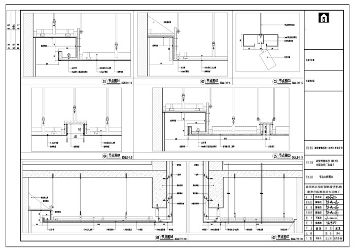
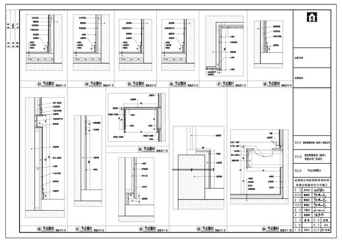
▼节点

 

办公深化图纸

 

▼节点

 

办公深化图纸

 

▼节点

 

办公深化图纸
上一篇:商场深化图纸 下一篇:客房深化图纸

相关作品

客房深化图纸
客房深化图纸
办公深化图纸
办公深化图纸

杭州梦启装饰设计有限公司,梦启有自己的办公室设计团队,也有自己的办公室装修施工团队。

杭州梦启装饰设计有限公司官网备案信息:【浙ICP备19037955号-1