杭州梦启办公室装修设计公司 杭州办公室装修设计 杭州办公室装修公司电话
杭州办公室装修效果图
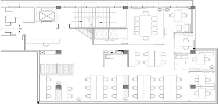
办公设计方案【260㎡】 浏览: 日期:2020-07-22 16:31 | 作者:梦启工装设计公司

▼方案
 

办公空间设计方案


▼前台

 

药业公司办公室前台装修设计效果图

 

▼前台

 

药业公司办公室前台装修设计效果图

 

▼接待

 

药业公司办公室接待装修设计效果图

 

▼接待

 

药业公司办公室接待装修设计效果图

 

▼过道

 

药业公司办公室过道装修设计效果图

 

▼办公

 

药业公司办公室办公装修设计效果图

 

▼办公

 

药业公司办公室办公装修设计效果图

 

▼办公

 

药业公司办公室办公装修设计效果图

 

▼会议

 

药业公司办公室会议装修设计效果图

 

▼经理

 

药业公司经理办公室装修设计效果图

相关作品

总部办公设计方案
总部办公设计方案
办公空间设计方案
办公空间设计方案

杭州梦启装饰设计有限公司,梦启有自己的办公室设计团队,也有自己的办公室装修施工团队。

杭州梦启装饰设计有限公司官网备案信息:【浙ICP备19037955号-1