前厅



大厅采用网格矩阵式的天花板,柔和的光线漫射而下,营造出宁静而优雅的氛围。空间内的选材素简,包括温暖的木、冷静的水泥石膏板和金属,在开放的工作环境中创造亲密和舒适的体验。


办公区

设计师专注于打造开放的工作空间,鼓励员工之间的无缝沟通和协作。此外,办公空间内还有私人会议室、视频会议亭、开放式会议桌,以及辅助功能的区域,包括一间材料室,用于产品开发中的材料收集和研究。
图书馆

空间激发创新,无论是在工作状态还是间歇的放松,员工将沉浸在新办公室友好而宜人的氛围中。同时,定制的照明系统可以激发灵感并提高专注度。
会议室

茶水区

展示中心


样品间


通过使用木材、混凝土等不同的材料,营造出简约和具有活力的空间。沿墙壁两侧的橱柜有多种使用方法,设计师在上面展示草图或进行自由的手绘创作;橱柜下方安装了可以灵活展示产品的抽屉,最大程度地提高了设计师的工作效率。
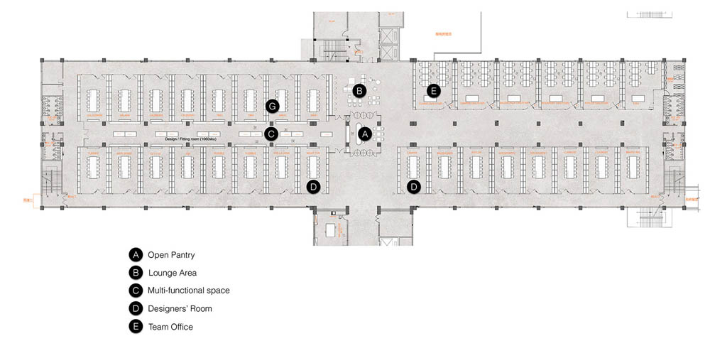
一层平面图

二层平面图

三层平面图
