整个厂区的规划的底层逻辑遵循着生产的秩序,建筑分为前端研发中心和后端厂房车间两个部分——前端研发中心以实验室、办公为主,辅助以展厅、食堂、公共休息空间等;后端由两个库房和一个生产厂房三个体量组成。

涂料产业园的设计中,空格建筑深入参与了建筑、景观、室内各个环节的设计,以统一的设计语言,为整个项目添加一些人文情怀和美学追求。

产业园基地研发中心的功能包括办公室和实验室两个部分,二三层空间悬挑出去,削弱了建筑的体积感,以接近城市的尺度向城市呈现积极的姿态。北侧三个超大体量厂房和南侧的研发中心形成一种对话关系,又将生产秩序清晰地展示到外部。


生产车间巨大、高耸的管道矗立在生产工厂的南侧山墙,暗示着整个空间真正的使用者是更大尺度的设备和机械,生产设备的秩序感也为整个产业园区提供了一种恰如其分的建造的张力。

场地南侧的主入口处形成了“产业园入口-入口广场-研发中心大厅”的空间序列。研发中心大厅的两层玻璃幕墙,将北侧厂房和工业生产的日常情形,作为景观的一部分进行展示,形成丰富的景观层次。

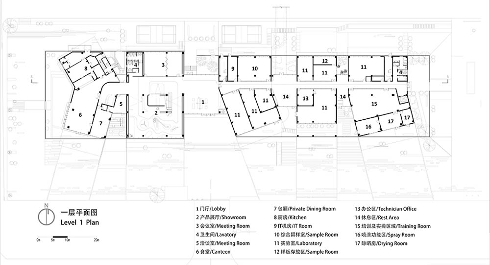
在空间排布上首先考虑了不同部门对工艺设备相对独立的需求,比如试验出来产品样本需要留样保存在一个独立的空间,所以内部走廊宽度做到了2.7-3m,以满足日常产品留样运输设备通行的需求。



在室内设计的层面,实验室以“岛”的概念呈现——在每一个实验台上方设计了一个体量来整合排烟、除尘、补光等设备,与下方的试验台共同形成了独立的“岛”,让粗犷且裸露混凝土艺术漆成为背景,反衬“岛”纯粹的白色。

每一个“岛”的上方连接蓝色除尘管道和红色消防管道,以品牌主题色点缀室内空间。我们用颜色来标注不同的功能需求,将原本散乱的边桌、展示等功能整合进实验空间中,为未来实验室日常操作保留弹性。








在厂区总图运输规划的基础上,团队从城市、设备、人三个层次的尺度入手嘉宝莉涂料产业园的设计工作,试着去突破工业建筑尤其是化工类建筑的传统形式和刻板印象,来创造一种在地的、独特的、友好的空间氛围。