本项目位于快通公司厂区内,共新建综合楼、车间和门卫及设备房三个建筑单体。其中,综合楼为设计重点。作为综合楼的主要功能空间,餐厅的主立面被精心打造。

铝制外遮阳百叶的出色应用与相应周边场所的营造,呈现出工业建筑所特有的技术潜能和空间潜力。而项目背后,则是建筑师带领下的设计团队对工业建筑设计美学的独特理解与设计追求。

正对厂区主入口的立面也成为了集团产品的大型展示墙面。材料、工艺、构造与环境的叠加,解除了“百叶”这个传统构件的重力束缚,赋予其科技感、轻盈感与古典美。

轻钢屋面向采光方向微微倾斜,以开放的姿态引入室外的光线、水池和草地。室内采光虽然借助了照明设备,但仿佛外部自然光线的延续。


为实现室内外采光的连续性和均衡性,我们考虑光线的方向,谨慎选择吊顶上照明设备的放置方向和分布模式,并进一步将空调、吸音降噪、排烟与喷淋综合在几何分割的设备带,以保证室内体验的纯粹性。

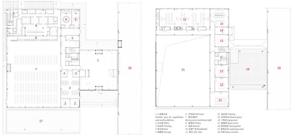
作为厂区工业建筑的附属空间,综合楼以空间利用的多功能性为设计目标,集餐厅、展示、接待、办公、会议、培训等功能为一体。

圆环外侧为入口门厅与访客接待,内侧则设置为洽谈区兼做小型展示区,可滑动调节的顶灯,结合可移动的小型展示台,获得了空间的灵活性。


内部流线由连接体后部的外廊解决,生产空间的工人通过外廊至综合楼进行就餐,或参加培训、会议等活动。

模数化理念的运用,有效控制了空间和立面的比例,提升室内外空间的美学品质的同时,显著降低建筑构配件的定制、施工周期和维护更换成本。




在对整体感、纯粹感、细节感的把握和追求之中,设计团队把厂区里原本不起眼的附属建筑变成了一个富有艺术性的“展品”。无论白天还是夜晚,都令人印象深刻。